- Largeur4.5 cm
- MatièresAluminium, Bois
- CouleurJaune
- Réf. ManoManoME71523
- Garantie5 années
- Réf. fabricantSU5126
- Système pour portes de séparation
- Kit comprenant le rail et les accessoires pour une pose facile (équerres de fixation non incluses)
- Porte jusqu’à 60 kg
- Fixation en applique ou à galandage
- Pack avec bandeau disponible
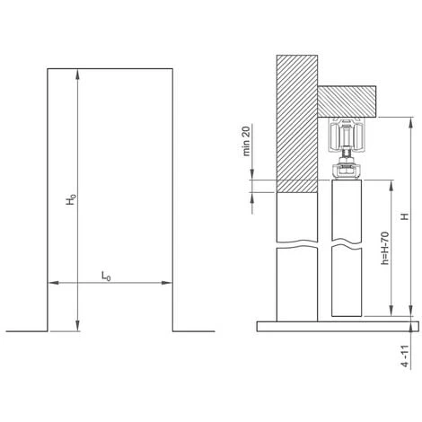
- Pour 1 porte jusqu’à 750 mm
- Rail 1,5 m
- Garantie 5 ans
Système coulissant SLID’UP 160 pour 1 porte de séparation à galandage ou en applique (équerres non comprises) – Rail simple de 1,5 m – Coulissant suspendu.
Poids maximum de la porte : 60 kg.
Épaisseur de la porte : 16 à 45 mm.
ATTENTION : Porte non comprise dans le kit.
Équerres et entretoises non comprises. Accessoires à ajouter selon options de montage.
Robuste et fiable, le système pour porte de séparation coulissante Slid’Up 160 vous assure un déplacement de votre porte à la fois fluide et silencieux grâce aux montures sur roulements à aiguilles.
Ce kit contient :
– 1 rail recoupable de 1500 mm.
– 2 montures
– 1 butée d’arrêt
– 1 butée de maintien
– 1 guide
– 1 lot de visserie
Options de montage :
Montage A :
Montage au plafond sans bandeau.
Ce kit contient tous les éléments pour réaliser ce type de montage.
Montage B :
Montage mural avec équerre de fixation pour porte 45 mm max.
Prévoir une équerre tous les 50 cm soit 4 équerres pour ce produit.
Possibilité d’ajouter un bandeau, pour une finition parfaite.
Équerre de fixation murale SLID’UP 160 pour porte de largeur maximum : 45 mm. (Non comprise dans le kit).
Bandeau aluminium anodisé naturel.
Bandeau aluminium anodisé or.
Bandeau aluminium anodisé bronze.
Montage C :
Montage mural avec équerre de fixation pour bandeau bois, pour porte d’épaisseur 25 à 45 mm max.
Equerre de fixation pour bandeau bois. (Non comprise dans le kit).
Montage D :
Montage au plafond avec entretoises : permet l’installation d’un bandeau.
L’utilisation d’un bandeau permet une finition parfaite. Plusieurs couleurs disponibles.
Entretoises pour fixation au plafond.
Bandeau aluminium anodisé naturel.
Bandeau aluminium anodisé or.
Bandeau aluminium anodisé bronze.
Autres options :
Kit pour 1 porte supplémentaire SLID’UP 160.
Kit de synchronisation pour SLID’UP 160 pour 2 portes.
Equerre de jonction pour système SLID’UP 160 pour porte <45 mm.
Equerre de jonction pour système SLID’UP 160 pour porte <25 mm.



















Avis
Il n’y a pas encore d’avis.